This portfolio illustrates Jason’s collaborative production with BILDdesign/BILDconstructs (bildit.com) from 2015-2019
Project: Residence for a family of three
Location: New Orleans, LA
Architect: BILD Design
Contractor: TBD
Collaborative Roles:
- site research and documentation
- schematic design
- design development
- presentations
- construction documents
- labor in build: demolition and bypass sliding door installation
model by Blankenship, for BILD Design (bildit.com)
model by Blankenship, for BILD Design (bildit.com)
drawing by Blankenship, for BILD Design (bildit.com)
drawing by Blankenship, for BILD Design (bildit.com)
drawing by Blankenship, for BILD Design (bildit.com)
drawing by Blankenship, for BILD Design (bildit.com)
drawing by Blankenship, for BILD Design (bildit.com)
drawing by Blankenship, for BILD Design (bildit.com)
drawing by Blankenship, for BILD Design (bildit.com)
drawing by Blankenship, for BILD Design (bildit.com)
drawing by Blankenship, for BILD Design (bildit.com)
drawing by Blankenship, for BILD Design (bildit.com)
drawing by Blankenship, for BILD Design (bildit.com)
drawing by Blankenship, for BILD Design (bildit.com)
drawing by Blankenship, for BILD Design (bildit.com)
drawing by Blankenship, for BILD Design (bildit.com)
drawing by Blankenship, for BILD Design (bildit.com)
In collaboration with BILD Design and BILD Constructs of New Orleans, Jason was responsible for producing much of the schematic design and presentation, design development, and construction documents material for this residential addition. He also worked with the construction team from demolition and foundation work through completion of final punch list. The design incorporates a semi in-ground pool; calling for a built-up infill berm and retained pool deck of stone pavers on slab above grade. A deep wrap around canopy protects much of the pool deck and extensive glazing from intense southern and western solar exposure. The detached in-law suite welcomes overnight guests, and offers a private refuge for wardrobe changes. A pool-side parrilla (wood-fired grill) finalizes the lively interplay between sun and shade; water and wood fire; lounging, swimming and cooking.
Project: Family Residence
Location: New Orleans, LA
Architect: BILD Design
Contractor: BILD Constructs
Collaborative Roles:
- site documentation of existing conditions
- schematic design
- design development
- presentations
- construction documents
- client communications
- subcontractor coordination
- quality control
- labor in build: site layout
through project closeout
photograph by Blankenship, showing fieldwork for BILD Constructs (bildit.com)
photograph by Blankenship, showing fieldwork for BILD Constructs (bildit.com)
photograph by Blankenship, showing operable aluminum louvre panel installation in closed position, fieldwork for BILD Constructs (bildit.com)
photograph by Blankenship, showing parilla and entertainment, "thick wall," fieldwork for BILD Constructs (bildit.com)
photograph by Blankenship, showing double bypass sliding door between den and pool-deck, fieldwork for BILD Constructs (bildit.com). Pool by others.
Form pressed, folded and reified by tripartite mandates for high security, historic restoration, and the powerful urge to open from within. Security is managed by reducing overall building scale toward the street. The front porch is unwrapped from behind a neighborhood-characteristic iron fence; slightly removed from the sidewalk edge to encourage dense planting. The bulk of private familial activity is given space deep within the site; protected. The program opens toward a backyard pool and adjacent covered deck; bringing to life an opportunism for dream-steeped waterside lounging. Guests may share the magic, reposing in the, “bird’s nest;” aloft overlooking cool waters.
Project: Residence for a family of three
Location: New Orleans, LA
Architect: BILD Design
Contractor: BILD Constructs
Collaborative Roles:
- site research and documentation
- schematic design
- design development
- presentations
- construction documents
- client communications
- subcontractor coordination
- quality control
- labor in build: site layout
through project closeout
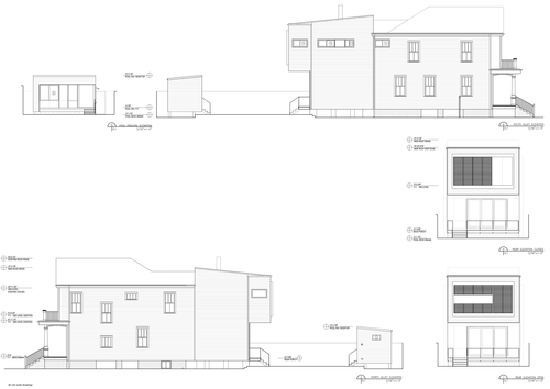
drawing by Blankenship, for BILD Design (bildit.com)
drawing by Blankenship, for BILD Design (bildit.com)
drawing by Blankenship, for BILD Design (bildit.com)
drawing by Blankenship, for BILD Design (bildit.com)
drawing by Blankenship, for BILD Design (bildit.com)
drawing by Blankenship, for BILD Design (bildit.com)
drawing by Blankenship, for BILD Design (bildit.com)
drawing by Blankenship, for BILD Design (bildit.com)
drawing by Blankenship, for BILD Design (bildit.com)
drawing by Blankenship, for BILD Design (bildit.com)
drawing by Blankenship, for BILD Design (bildit.com)
drawing by Blankenship, for BILD Design (bildit.com)
drawing by Blankenship, for BILD Design (bildit.com)
drawing by Blankenship, for BILD Design (bildit.com)
model images by Blankenship, for BILD Design (bildit.com)
Henry Clay Addition and Renovation (built 2016)
Project: Residence for a couple
Location: New Orleans, LA
Architect: BILD Design
Contractor: BILD Constructs
Collaborative Roles:
- subcontractor coordination
- quality control
- interior and exterior trim-out
- installation of custom doors and casework
- installation of custom windows and casework
- installation of cabinetry throughout
- fabrication-installation of louvre panel systems
- fabrication-installation of porch grid-screen
- installation of operable horizontal bypass carport door
photograph by Blankenship, showing operable louvre panel installation and horizontal bypass garage door in open position
photograph by Blankenship, showing operable louvre panel installation in closed position
photograph by Blankenship, showing operable louvre panel installation in closed position
photograph by Blankenship, showing kitchen cabinetry installation
photograph by Blankenship, showing grid-screen panel installation and exterior stair
photograph by Blankenship, showing grid-screen panel installation and exterior stair